Calepinage du point de Hongrie
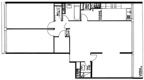
Le plan d'origine
Le calepinage est l'implantation du point de Hongrie dans l'appartement.
Un relevé des dimensions et des contraintes conduit à la réalisation d'un plan de fabrication : les largeurs de travées seront variables dans l'appartement pour une disposition harmonieuse.
Dans certains cas (murs épais par exemple), cette implantation incluera des soffites, des encadrements et toutes pièces nécessaires au parfait achèvement.
Ci-dessous (exemple réel), le plan de l'appartement qui recevra le parquet. Le point de Hongrie sera, dans le cas présent, un massif collé sur chape mais Bemart procède de la même façon pour les restaurations de parquets massifs cloués sur lambourdes.
Seul ce travail traditionnel sur mesures permet un résultat parfait, pour un coût finalement peu supérieur.
>> Cliquez pour zoomer
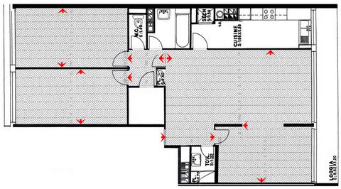
Les contraintes à respecter
Les travées de parquet seront variables en largeur (sans que ce soit visible…) pour permettre de respecter les contraintes esthétiques.
Il faut en effet respecter les axes des portes, des cheminées parfois, et concevoir l'ensemble pour que le parquet ne finisse par par une multitude de petites pièces inesthétiques.
Dans le cas de cet appartement, le parquet devra arriver 'juste' sur chaque cloison, être dans l'axe des portes et également être 'retourné' à la limite public/privé (entrée séjour et dégagement).
>> Cliquez pour zoomer
Le plan d'exécution
Bemart a conçu un plan d'exécution qui respecte l'ensemble des contraintes.
Chaque travée est fabriqué, au millimètre près bien sûr ; nos compagnons-parqueteurs reçoivent le lot de parquet avec travées numérotées, comme un immense puzzle.
On observe par exemple que dans le dégagement, les travées sont plus larges que dans le séjour, leurs dimensions ont en effet été dictées par la position des portes des chambres.
Le résultat est conforme aux exigences et à la tradition du parquet.
>> Cliquez pour zoomer






